Котел 0.4 МВт без дымососа на самотяге в Актобе

Котел 0.4 МВт работающий без дымососа
Котел 0.4 МВт без дымососа
Котел 0.4 МВт без дымососа чертеж
Чертеж котла 0.4 МВт без дымососа
Водогрейный котел 0.4 МВт работающий без дымососа
Водогрейный котел 0.4 МВт без дымососа
Промышленный котел 0.4 МВт без дымососа
Промышленный котел 0.4 МВт без дымососа
Изготовление котла 0.4 МВт работающего без дымососа
Изготовление котла 0.4 МВт без дымососа
Производство котлов 0.4 МВт работающих без дымососа
Производство котлов 0.4 МВт без дымососа
Котел 0.4 МВт работающий без дымососа
Котел 0.4 МВт без дымососа чертеж
Водогрейный котел 0.4 МВт работающий без дымососа
Промышленный котел 0.4 МВт без дымососа
Изготовление котла 0.4 МВт работающего без дымососа
Производство котлов 0.4 МВт работающих без дымососа
Цена
3 517 080 ₸
От 3 517 080 ₸ с доставкой до г.
  • Работает без дымососа на естественной тяге
  • Дутье и тяга регулируются шиберами
  • Развитая поверхность нагрева обеспечивает высокий КПД
  • Легкий выход котла на номинальную мощность даже при плюсовой температуре
  • Надежная работа котла обеспечивается изготовлением трубной системы из трубы сталь 10-20 повышенной прочности

Технические характеристики котла 0.4 МВт без дымососа на самотяге

МаркаКотел 0.4 без дымососа
ВидВодогрейный
Тип отопительного котлаТвердотопливный
БрендHEATEXPERT
ТипКотел КВр
Вид топкиРучная, Колосники
Максимальная тепловая мощность0.4 МВт
Максимальная тепловая мощность400 кВт
Максимальная тепловая мощность0.34 Гкал
Диапазон регулирования мощности50-100 %
ТопливоТвердое, Уголь
Низшая теплота сгорания проектного топлива5230 кКал/кг
КПД котла на УГЛЕ, не менее80 %
Расход УГЛЯ среднечасовой за отопительный сезон45.1 кг/ч
Расход УГЛЯ при максимальной нагрузке котла79 кг/ч
Расход условного топлива59 кг/ч
Минимальная температура воды на входе в котел55 °С
Максимальная температура воды на выходе из котла115 °С
Давление воды, не более0.3-0.6 (3-6) МПа (кгс/см²)
Номинальный расход теплоносителя14 м³/ч
Расход теплоносителя через котел min-max10-17 м³/ч
Гидравлическое сопротивление при номинальном расходене более 0.07 (0.7) МПа (кгс/см²)
Аэродинамическое сопротивление131 (13.36) Па (мм. вод. ст.)
Разряжение в топочной камере20-40 (2-4) Па (мм. вод. ст.)
Объем уходящих газов1700 м³/ч
Температура уходящих газов220 °С
ТягаЕстественная
Водяной объем котла300 л
Объем топочной камеры0.99 м³
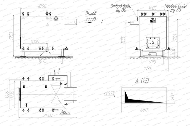
Размер топочной камеры, длина*ширина*высота1010х660х1370 мм
Активная площадь решетки горения0.73 м²
Присоединительные размеры по водяному тракту65 Ду
Присоединительные размеры газохода уходящих газов, ширина*высота / сечение390х200 / 0.08 мм/м²
Габаритные размеры котла, длина*ширина*высота2850х1600х2050 мм
Масса1800 кг
Конструкция котлаВодотрубная
Количество контуровОдноконтурный
РазмещениеНапольный
Тип камеры сгоранияОткрытый
УправлениеЭлектронное
Принцип работы твердотопливного котлаКлассический
ЭнергонезависимыйНет
Тип питанияТрехфазное
Встроенный циркуляционный насосНет
Встроенный расширительный бакНет
Отапливаемая площадьот 3000 до 4300 м²
Отапливаемый объемот 9000 до 13000 м³
ЭнергоэффективностьВысокая

Твердотопливный котел 0.4 МВт с естественной тягой в Актобе

Водогрейный котел на самотяге мощностью 0.4 МВт работает на каменном и буром угле без дымососа. Угольный котел применяется для отопления и горячего водоснабжения маленьких и больших помещений и зданий. Нагревает воду температурой до 115 °С и давлением 0,3-0,6 МПа. Используется в котельных с ручными топками.

Промышленный водонагревательный котел 0,4 МВт на естественной тяге работает без дымососа, что снижает энергозатраты в отопительный сезон. Высокий КПД котла 80% достигается благодаря большой поверхности нагрева. Особенность конструкции заключается в специальной системе тяги и дутья, которую обеспечивает дымовая труба и вентилятор. Даже при плюсовой температуре наружного воздуха, агрегат без труда выходит на номинальную мощность. При этом дым не выбивается в котельную и конденсат поверхностей нагрева исключен.

Принцип работы котла 0.4 МВт на естественной тяге

Тяга в отопительном котле без дымососа 0,4 МВт создается за счет высоты дымовой трубы 18 метров и разности температур наружного воздуха с дымовыми газами. В зимний период тяга легко устанавливается. Но, в начале отопительного сезона, когда температуры не сильно различаются, необходимо разогреть дымовую трубу. Для этого часть горячих газов пускается через обводной газоход. После прогрева трубы устанавливается стабильная тяга, перекрывается газоход, котел выходит на максимальный КПД.

Конструкция котла 0.4 МВт без дымососа

Промышленный отопительный котел без дымососа 0 4 МВт состоит из топочной и конвективной частей.

Топочная часть. Топка выполнена в газоплотном исполнении для исключения присосов холодного воздуха.

Горение происходит на колосниковой, либо водоохлаждаемой решетке. Топливо укладывается ровным слоем, не более 200 мм.

Колосниковая топка собирается из чугунных колосников с щелевидными отверстиями. Отверстия необходимы для провала золы в зольный короб и подачи воздуха для горения. Воздух подается при помощи вентилятора, либо за счет естественной тяги.

Водоохлаждаемая камера состоит из труб с проходящей по ним водой. Вода охлаждает конструкцию, исключает перегрев и прогорание колосников. Отверстия небольшого диаметра располагаются по всей поверхности колосников для равномерной подачи воздуха в слой топлива. Размер отверстий препятствует провалу не догоревшего топлива. Топливо находится в топке до полного выгорания.

Конвективная часть. Конвективная поверхность водотрубного котла 0,4 МВт на естественной тяге выполнена из плотных регистров, вставленных друг в друга в шахматном порядке. Это обеспечивает значительную нагревательную площадь и высокий коэффициент передачи тепла. В связи с этим горячие дымовые газы подвергаются охлаждению до 180-200 °С.

Котельный блок. Водогрейный котел 0.4 МВт на самотяге для отопления изготавливается из труб обшитых теплоизоляцией и стальными листами. Для очистки конвективных пакетов имеются люки. Чистка зольного короба производится через дверку. Обводной газоход устанавливается сбоку вверху топочной камеры и присоединяется в газоход за котлом.

Комплект поставки

Стационарный напольный котел 0,4 МВт с естественной тягой включает базовую комплектацию. В состав базовой комплектации входит: вентилятор поддува, клапаны, вентили, манометры, термометры, трехходовые краны.

Дополнительная комплектация

  • циркуляционный насос - обеспечивает циркуляцию воды в котлоагрегате;
  • подпиточный насос – позволяет пополнять объем теплоносителя в контуре;
  • дымовая труба – создает тягу, удаляет дымовые газы от котла за пределы помещения и рассеивает их в атмосфере. Подбирается по техзаданию.

Купить котел 0.4 МВт на естественной тяге

Для того, что бы купить котел 0.4 МВт работающий без дымососа на самотяге в Актобе вы можете сделать заявку по телефону +7-7172-69-59-73, либо оформить заявку онлайн. Менеджеры дадут консультацию по подбору вспомогательного оборудования для выбранных вами моделей и рассчитают стоимость доставки. Транспортирование котлоагрегата и вспомогательного оборудования до объекта осуществляется автомобильным транспортом.

Комплект поставки котла 0.4 МВт без дымососа на самотяге

Вентилятор
Вентилятор 2 с дв. 1,5/3000
1 штука
Затвор ДУ 65
Затвор Ду 65
2 штуки
Колосники котлов
Колосник 520x220
5 штук
Клапан обратный
Клапан обратный
1 штука
Манометр МП 160
Манометр МП 160
2 штуки
Кран трехходовой ДУ 15
Кран Ду 15
2 штуки
Термометр ТТЖО
Термометр ТТЖО
2 штуки
Оправа термометра ОПТ
Оправа ОПТ
2 штуки
Вентиль Ду 15
Вентиль Ду 15
4 штуки
Вентиль Ду 20
Вентиль Ду 20
14 штук

Вспомогательное оборудование для работы котла 0.4 МВт без дымососа на самотяге

Насос К консольный
К 65-50-125
Цена 336 444 тг.
Насос К консольный
К 50-32-125
Цена 283 656 тг.
Насос TD
Насос TD32-33G2 (3 кВт)
Цена 788 640 тг.
Насос CHL
Насос CHL2-40 (0.55 кВт)
Цена 368 880 тг.

Аналоги котла 0.4 МВт без дымососа на самотяге

Котел КВр-0.4 К
Котел КВр 0.4 МВт
Вид топкиРучная, Колосники
Максимальная тепловая мощность, МВт0.4
ТопливоТвердое, Уголь
Отапливаемая площадь, м²от 3000 до 4300
Цена 3 313 560 тг.
Котел 0.4 МВт с топкой ОУР
Котел 0.4 с ОУР
Вид топкиРучная, ОУР
Максимальная тепловая мощность, МВт0.4
ТопливоТвердое, Уголь
Отапливаемая площадь, м²от 3000 до 4300
Цена 3 237 240 тг.
Котел 0.4 МВт дрова уголь
Котел 0.4 МВт уголь дрова
Вид топкиРучная, Колосники, ОУР
Максимальная тепловая мощность, МВт0.4
ТопливоТвердое, Уголь, Дрова
Отапливаемая площадь, м²от 3000 до 4300
Цена 3 491 640 тг.
Котел 0.3 МВт работающий без дымососа
Котел 0.3 МВт без дымососа на самотяге
Вид топкиРучная, Колосники
Максимальная тепловая мощность, МВт0.3
ТопливоТвердое, Уголь
Отапливаемая площадь, м²от 2300 до 3300
Цена 2 785 680 тг.
Котел 0.5 МВт работающий без дымососа
Котел 0.5 МВт без дымососа на самотяге
Вид топкиРучная, Колосники
Максимальная тепловая мощность, МВт0.5
ТопливоТвердое, Уголь
Отапливаемая площадь, м²от 3900 до 5500
Цена 3 637 920 тг.

Сертификат и качество котла 0.4 МВт без дымососа на самотяге

Сертификат на водогрейные котлы на твердом и жидком топливе
Сертификат на водогрейные котлы на твердом топливе

Собственное производство

Котельный завод производит
  • Паровые котлы от 300 кг до 2.5 тонны пара в час
  • Промышленные водогрейные котлы от 150 КВт до 4 МВт на всех видах топлива
  • Механические топки ТШПМ, шурующая планка и ТЛПХ, ленточное полотно прямого хода
  • Циклоны для очистки воздуха и дымовых газов для производств и промышленных отраслей
  • Транспортеры и системы топливоподачи и шлакоудаления
Подробнее о производстве
Собственное производство
Смотреть видео
с производства